Di kebanyakan bandaraya-bandaraya besar di seluruh dunia, antara yang menjadi masalah merumitkan adalah tentang perumahan kerana kepadatan penduduk yang semakin meningkat.
Cara untuk mengatasi masalah ini adalah dengan mereka ruang kediaman yang lebih efisien dalam penjimatan ruang. Di Jepun contohnya, arkitek Shintaro Fujiwara dan Yoshio Muro dari Fujiwaramuro Architects telah mereka rumah sempit yang selesa didiami di atas tanah sekecil 37 meter persegi. Bertempat di daerah Hyogo di Jepun, antara ciri istimewa pada rumah sempit ini ialah pada bahagian facade yang dihiasi daripada bahan binaan kayu.
Rumah setinggi tiga tingkat ini dilengkapi dengan dua buah bilik tidur, ruang tamu, ruang makan, dapur, bilik stor dan juga garaj. Selain itu ianya juga dilengkapi dengan skylights yang berfungsi menjimatkan elektrik dengan menyediakan pencahayaan semulajadi ke dalam rumah.









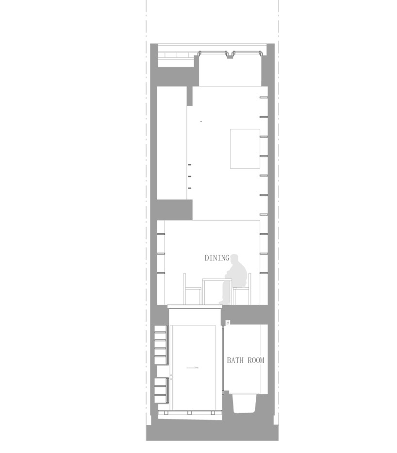
Cara untuk mengatasi masalah ini adalah dengan mereka ruang kediaman yang lebih efisien dalam penjimatan ruang. Di Jepun contohnya, arkitek Shintaro Fujiwara dan Yoshio Muro dari Fujiwaramuro Architects telah mereka rumah sempit yang selesa didiami di atas tanah sekecil 37 meter persegi. Bertempat di daerah Hyogo di Jepun, antara ciri istimewa pada rumah sempit ini ialah pada bahagian facade yang dihiasi daripada bahan binaan kayu.
Rumah setinggi tiga tingkat ini dilengkapi dengan dua buah bilik tidur, ruang tamu, ruang makan, dapur, bilik stor dan juga garaj. Selain itu ianya juga dilengkapi dengan skylights yang berfungsi menjimatkan elektrik dengan menyediakan pencahayaan semulajadi ke dalam rumah.









0 comments:
Catat Ulasan